The House
Contact Us!

Name:

Email:

Comments:





Home, Sweet Home
Marble Bay II
1307 Wayne Way
San Mateo, CA

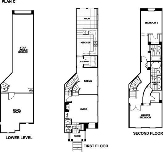
The new Woo Family Home will have three levels. The garage will be located in the lower level. The main level, or first floor, contains the living room, dining room, kitchen, and laundry room. The top level, or second floor, houses all of the bedrooms.

Plan Description
Large master with walk-in closet. Second bedroom for guests could also be a second master for a room mate. Kitchen has nook. Formal living room and dining room


Floor Plan Details
Community Ryland Marble Bay II Dining 2
Type Plan Baths 2 1/2
Levels 3 Living 1
Square Feet 1546 sq.ft City San Mateo
Garage 2 County San Mateo
Master Bed Upstairs State CA
Bedrooms 2 Fireplace 1

| Location | Floorplan | Virtual Tour | Updates |

 

Copyright ©2002 Paul & Florence Woo, all rights reserved.